Private House  _ Casa B. & A.

Progettazione e Direzione lavori

FP Architettura e design

 

Impresa esecutrice 

Edil SaRi 

 

Impianto Elettrico

Ciro Della Spina

 

Impianto Idraulico

Alessandro Ferrara

 

Falegnameria 

Eredi Donnarumma

 

Forniture 

Ceramiche Pinto

Nani Vietri Design

Arredamenti Martorelli

 

 

Costiera Amalfitana 

 2021_2022

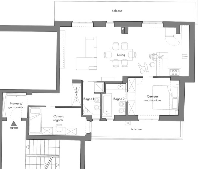
Pianta con arredi

dettaglio pavimentazione

living

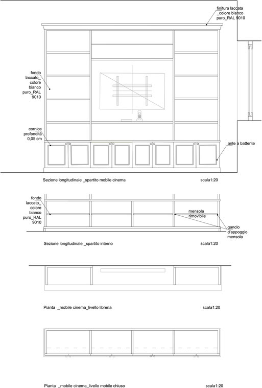
Living_ grafico mobile cinema

living _mobile cinema

vista dal living 

bagno di servizio

Vista sul living _cucina con penisola

cucina con penisola

camera matrimoniale _Comodini

camera matrimoniale

camera matrimoniale _ armadio passante

armadio passante nella camera matrimoniale

armadio passante _interno 

bagno padronale

bagno padronale

lavanderia specchiata

Vista dal corridoio _lavanderia specchiata

guardaroba ingresso

guardaroba ingresso

Fasi di cantiere