Casa S. & L.


Progettisti

Arch.Carmen Fratantonio

Arch. Antonio Pacileo

 

Napoli

2018


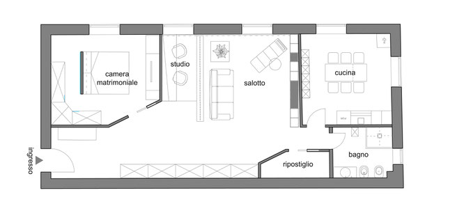
Volontà dei committenti era quella di avere un appartamento che si sviluppasse su due cromie base . Il bianco e il nero.

Bianco e nero infatti sono i colori che predominano in ogni punto della casa, dal pavimento al rivestimento della cucina al letto, dalle cornici al frigo.

 

Il soggiorno/studio è un grande spazio apparentemente unico in realtà una parete composta da catene divide i due spazi .

Il soggiorno è composto da una parete attrezzata in acciao verniciato nero. Un grande scheletro che alterna mensole a spazi vuoti.

 

La parete retrostante è rivestita con carta da parati dando un aspetto fresco e dinamico all'ambiente. Una chaise longue con un tavolino accostati alla grande libreria crea un angolo per i momenti di relax . Una boiserie con mensola si stende su tutta la parete dal soggiorno allo studio riunendo i due spazi.

soggiorno - studio

Lo studio è rialzato rispetto alla quota del pavimento del soggiorno di circa 10 cm con una piattaforma , dentro la quale passano tutti gli impianti. Mensole e scrivania, completamente a sbalzo si alternano su una parete rivestita di carta da parati . 

cucina

cucina

cucina

cucina 

La cucina è pensata come uno spazio dinamico e moderno.

Vi erano all'interno in precedenza degli armadietti da spogliatoio che si è deciso di tenere e trasformare a dispensa ricolorandoli di bianco. La parete di fondo è rivestita in carta da parati con un disegno stilizzato/floreale che crea movimento e dinamicità a tutta la cucina. 

camera da letto 

camera da letto - parete specchio 

La camera da letto è uno spazio che ha come protagonista la parete letto. Questa infatti diventa elemento divisorio tra due zone : la zona letto e la zona cabina armadio.

La zona letto è contraddistinta dalla faccia principale della parete rivestita di carta da parati, sulla quale è appoggiato il letto ed una mensola per appoggiare gli effetti personali.

La parte retrostante della parete è composta da un grande specchio contenuta in una grande cornice che da profondità allo spazio ed è parte della cabina armadio.

 

La cabina armadio è composta da un armadio bianco e una cassettiera di colore nero. 

bagno